£685,000
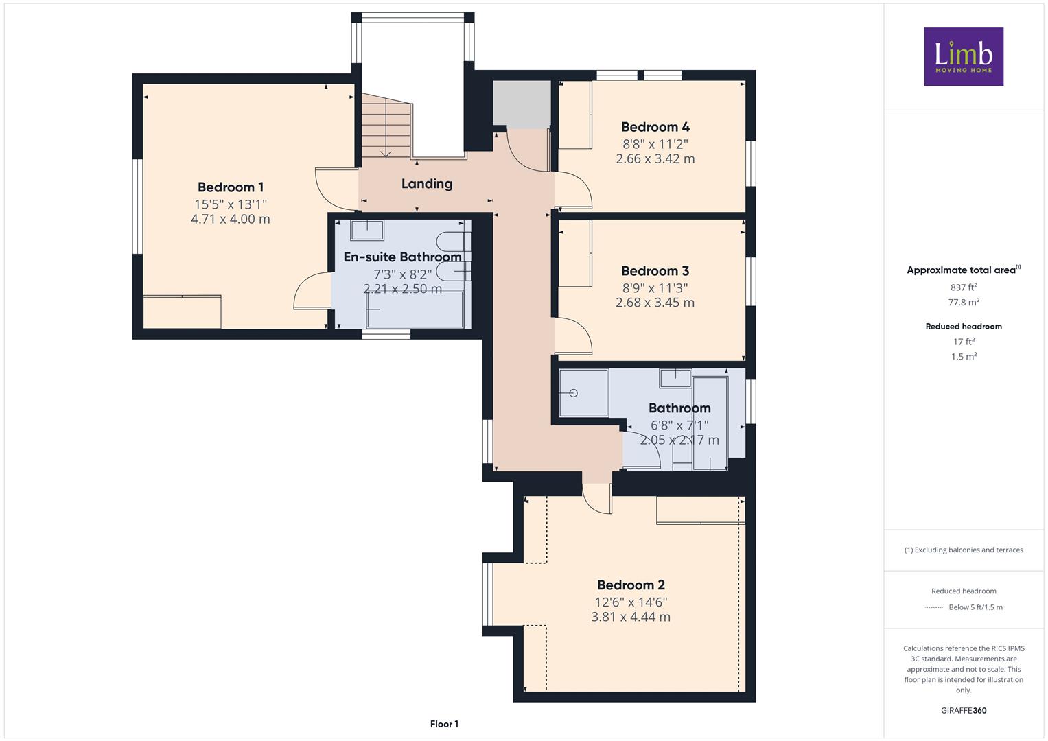
4 Bedroom 2 Bathroom
Westfield House is a true "one off", individually designed and built in 2016 being tucked away close to the heart of this exclusive conservation village and bordering open fields to one side. Packed full of features and with a high specification, a contemporary layout includes a spectacular living/dining/kitchen with glazed walls and sliding doors out to the garden with views beyond. The ground floor also has an impressive hallway, formal lounge, utility room and cloaks/W.C.. The kitchen is of particular note with its range of beautiful bespoke dual toned units and shaped island complete with circular dining table. Upon the first floor are four fitted bedrooms and two bathrooms. Outside, the perimeter is defined by an attractive brick wall with sliding entrance gate opening to a block set forecourt and the integral garage beyond. Landscaped gardens and patio areas surround the house with box hedging, lawns, patio areas. A copse of trees beyond the rear boundary helps to create a stunning environment with views also across the countryside to the west. There is no onward chain therefore a quick completion should be possible.

The property enjoys an idyllic setting and stands at the end of Manor Fields, an award winning development accessed off Chapel Lane. West Ella is one of the most desirable places to live in East Yorkshire. The picture postcard conservation village lies between Kirk Ella and Swanland on the eastern edge of the Yorkshire Wolds, some 6 miles to the west of the city of Kingston Upon Hull. West Ella Road runs through the village and was beautified by the owners of the Sykes family in the 19th century and as a consequence, much of the location is a conservation area with many listed buildings. The village is characterised by its white pebble-dashed cottages and is well placed for the surrounding area, shops, schools and amenities including many conveniently placed supermarkets and retail parks. A variety of sporting facilities are also to hand and the well renowned Hull Golf Club is situated approximately 1 mile away. Convenient access can be gained to the Humber Bridge northern approach road and into the A63/M62 motorway system making this an ideal location for the commuter/regional traveller. The historic market town of Beverley is located some 8 miles to the north.
A contemporary composite entrance door with glazed screen to side opens to the entrance hall.
An impressive hallway providing access to both the formal lounge and via two etched glazed, 'self closing' doors into the living kitchen. A staircase leads up to the first floor with half landing providing great views across the countryside to the west and there is a storage cupboard beneath.

A formal room with windows to three elevations including a bay.

A simply outstanding room to the rear of the house which is ideal for 'day to day' living. You are instantly taken by the wall of glazing which extends to three sides of the room and provides views across the gardens and countryside beyond. Patio doors allow access out to the terraces. The kitchen is of significant quality having a beautiful range of bespoke triple toned handmade units including stylish cabinetry, work surfaces and a shaped central island with circular dining table. Appliances include a Siemens hob with Falmec extractor system above, twin Siemens electric ovens and dishwasher, sink with waste disposable unit and Quooker hot water tap, fridge freezer. This room also have underfloor heating.

Situated between the kitchen and integral garage. Having a matching range of fitted units, sink and drainer, plumbing for automatic washing machine and space for dryer. LVT flooring, internal door through to the garage and a composite rear door out to the garden.

With Villeroy and Boch suite comprising low flush W.C., vanity wash hand basin upon a designer cabinet, attractive tiled surround, heated towel rail.

The landing is accessed via a turning staircase which has windows providing beautiful views across adjoining countryside. There is also an airing cupboard situated off the landing.

A particularly spacious room with fitted wardrobes, dressing table and drawers, window to front elevation.

A stylish bathroom with white suite comprising vanity wash hand basin with cabinet, low level W.C., bidet and bath. Heated towel radiator, tiled surround.

Again, a spacious double bedroom with bay window to front elevation. Low fitted wardrobes and drawers.

Fitted wardrobes, window to rear elevation.

With fitted wardrobe, window to rear and two further small windows to the side elevation providing far reaching views over fields.

With white suite comprising vanity wash hand basin upon cabinet, low level W.C., bath, shower enclosure, tiled surround, heated towel rail.

The perimeter of the property is defined by an attractive brick wall and an automated sliding gate opens to allow access to the block set parking forecourt and garage beyond. Access can be gained to either side of the property with an attractive westerly aspect across adjoining countryside. There are patio areas surrounding the property with a raised lawn beyond featuring box hedging, herbaceous borders and planting. A copse of trees beyond creates a beautiful established environment.

All mains services are connected.
The property has the benefit of gas fired central heating to panelled radiators. Underfloor heating to the living/dining/kitchen zone.
The property has the benefit of double glazing.
There is a burglar alarm and CCTV system installed.
Freehold
From a verbal enquiry we are led to believe that the Council Tax band for this property is Band G. We would recommend a purchaser make their own enquiries to verify this.
Please note those items specifically mentioned in these particulars are to be deemed as being included in the purchase price unless otherwise agreed in writing. Certain other items may be available by separate negotiation as to price. Those items visible in the photographs such as furniture and personal belongings are not included in the sale price.
Strictly by appointment through the agent. Brough Office 01482 669982. A prospective viewer should check on the availability of this property prior to viewing.
For clarification, we wish to inform prospective purchasers that we have not carried out a detailed survey, nor tested the services, appliances, plumbing or heating system and specific fittings for this property. All measurements provided are approximate and for guidance purposes only. Floor plans are included as a service to our customers and are intended as a GUIDE TO LAYOUT only, NOT TO SCALE. Limb Estate Agents Ltd for themselves and for the vendors or lessors of this property whose agents they are give notice that (i) the particulars are set out as a general outline only for the guidance of intending purchasers or lessees, and do not constitute any part of an offer or contract (ii) all descriptions, dimensions, references to condition and necessary permissions for use and occupation, and other details are given in good faith and are believed to be correct and any intending purchaser or tenant should not rely on them as statements or representations of fact but must satisfy themselves by inspection or otherwise as to the correctness of each of them (iii) no person in the employment of Limb Estate Agents Ltd has any authority to make or give any representation or warranty whatever in relation to this property. If there is any point which is of particular importance to you, please contact the office and we will be pleased to check the information, particularly if you contemplate travelling some distance to view the property. These particulars are issued on the strict understanding that all negotiations are conducted through Limb Estate Agents Ltd.
In order to capture the features of a particular room we will mostly use wide angle lens photography. This will sometimes distort the image slightly and also has the potential to make a room look larger. Please therefore refer also to the room measurements detailed within this brochure.
If you have a property to sell we would be delighted to provide a free
o obligation valuation and marketing advice. Call us now on 01482 669982.


Find out how much your property is worth